卫生间装修的建议
  • 发表日期:2017-04-22
  • 浏览:211
  卫生间是我们私密空间,日常生活中每天都离不开卫生间。许多业主都是能省就省,这就要注意了不该省的地方可不能省,省来省去,后患无穷给自己找一堆麻烦。为了日后省事我们不妨参考下以几点。

  卫生间设计

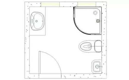
  不管是大卫生间(6㎡及以上)还是小卫生间,都有三个主要功能是不能抛弃的,把握好这三块设计,万变不离其宗。

  1.马桶

  提到卫生间马桶,首要考虑的问题就是马桶距。一般的马桶长70cm,装完马桶后前方要留至少40cm的距离,这样才能保证你坐下和行走的顺畅,也才能确定浴室柜的宽度。

  2.浴室柜

  浴室柜的面材可分为天然石材、人造石材、防火板、烤漆、玻璃、金属和实木等;基材是浴室柜的主体,它被面材所掩饰。基材是浴室柜品质和价格的决定因素。

  此外,浴室柜的大小和形状也都是我们要考虑的问题,需要结合卫浴间空间的大小、装修风格,确定合适的浴室柜样式。这样合理的预留空间,也会给我们日常洗浴带来方便。

  3.淋浴

  现在的卫生间基本上都是干湿分离,也就是说,马桶、洗手台与淋浴分开。

  市场上最常见的淋浴房主要是转角和一字形两种。选择哪种样式,主要是依据浴室布局而定。一般来说,采用转角式淋浴房相对比较节省空间四分之一圆弧形淋浴门适合装在卫生间转角区,又能利用不太好处理的转角区。

  一般来说,东方人的身高、体型适合使用90×90cm以上的淋浴房。而在面积大小上,同样是90×90cm的规格。

  如果不愿意买现成的淋浴房,又想实现干湿分离,最方便的办法就是加装淋浴拉门。拉门又分为推拉和开合两种。相对来说,推拉式的拉门更加节省空间。

  地板砖的选择

  卫生间是个易潮易湿的地方,在地板材质上的选择应该注重防滑防水,避免人跌倒。在挑选卫生间地砖时,最好选择表面凹凸花纹的地砖,这样的地砖不仅起到了防水的效果,防滑性也有保障,即使沾水的情况下,也比光滑的地砖防滑很多。

  卫生间天花板的设计

  卫生间天花板不宜设计太过复杂,主要注意防止水蒸气。所以,在天花板的材质选择上也以防潮防水性较好的为主。可以选择防水性的PVC扣板,接到龙骨上也能起到一定美化管道的作用。

  电路和插板的设计

  不要将电线裸露,在安装电路,开关的时候应格外小心。灯具和开关都应选择有安全防护的,接头盒插销都不要暴露,尽量加上防护盖,免得受潮湿空气影响。注重,安全第一。

  采光和通风

  卫生间应该选择通风和采光好的地方,这样可以保持卫生间的干燥和整洁,如果采光缺欠佳,也可以通过白炽灯的选择来弥补。在灯具的选择上,一般选择防水型日光壁灯或防爆型白炽吊灯。

  卫生间的储物空间

  卫生间可以多设置一些储物架用来摆放毛巾及洗护用品,这样可以在一定程度上扩大卫生间的实用面积。


案例推荐
核心领域:郑州装修公司,郑州装修设计,郑州二手房装修,郑州十大装修公司排名,郑州别墅装修,郑州全包装修,郑州房子装修,郑州老房翻新
© 2020-2028 m.u-om.com All Rights Reserved 版权所有: 郑州有家装饰工程有限公司
预约免费上门量房
每日前30名,送3000元大礼包
您的称呼:
您的手机号码:
预约免费上门量房
每日前30名,送3000元大礼包
您的称呼:
您的手机号码: