主要图纸也就是装修过程中,主要装修环节的示意图,让户主和施工人员清楚设计者的构想。装修的主要图纸包括原始建筑测量图、平面布局图、天花吊顶布局图等。


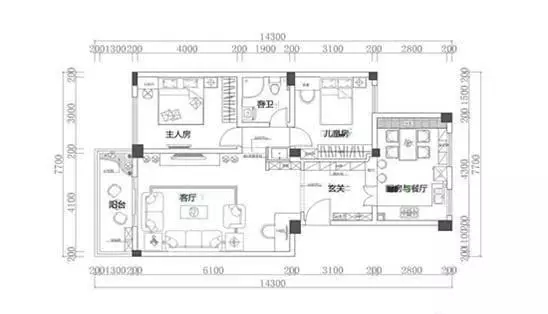
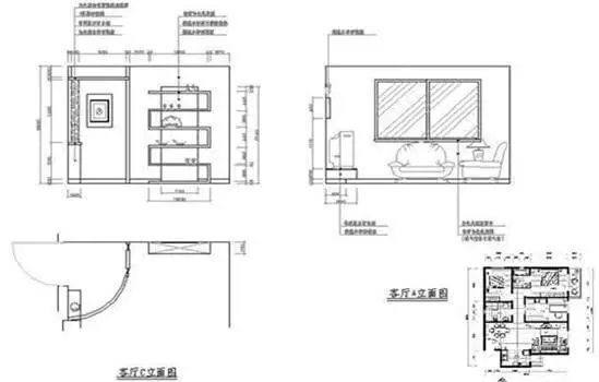
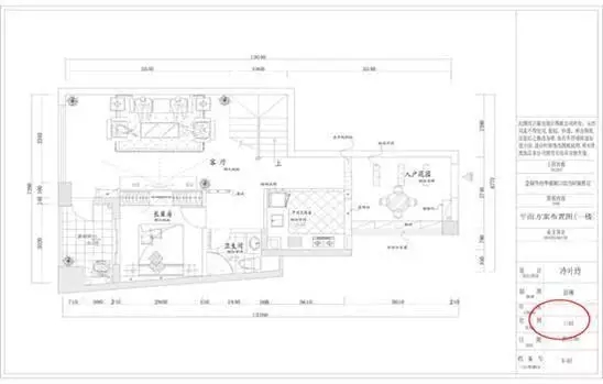
装饰平面布局图中具备的内容十分之多。其中应具备:墙体定位尺寸,有结构柱、门窗处应注明宽度尺寸;各区域名称要注全,如客厅、餐厅、休闲区等,房间名称要注全,如主卧、次卧、书房等;室内、外地面标高、墙体厚度应注明;如有楼梯,标明平面位置的安排、上下方向示意及梯级计算;门的开启方向;活动家具布置及盆景、雕塑、工艺品等的配置。

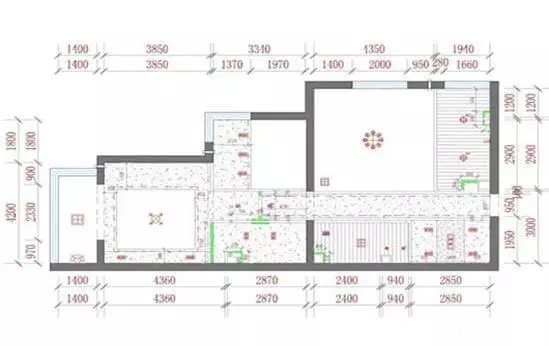
天花吊顶布置图是天花吊顶装修项目中最重要的图纸之一。它要求标明天花造型的尺寸定位、灯具位置及详图索引,并应标注天花底面相对于本层地面建筑面层的高度,同时还要注全各房间的名称。


除了主要的图纸,在家居装修过程中,这些图纸也经常看到,下面一起来看看吧。

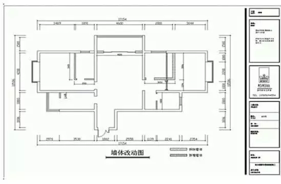
建筑改建平面图是根据设计方案将需要改动结构的墙体在图纸上标明的标识,比较常见的表示方法是在图纸上可以用虚线表示需要拆除的墙体,深色表示改建的墙体。

强弱电布置图是关于居室内部所有强电和弱电的布置的。房间里所有开关的位置,及每个开关所控制的电器、灯源。

3、给水走向图
给水走向图是关于厨房、卫生间等处的给排水线路的布置图、给水管道的管径尺寸、取水位置及高度、管线排布系统等是该图的重点。在水路施工中要十分注重,要以此图为基础。


现实很多情况中,很多消费者都只喜欢看效果图,但却往往忽视了施工图,但是,效果图上漂亮的造型,现场制作出来以后,却往往与设计图纸上相差甚远。其实检查一下原因,就是设计师没有按照施工图纸来做设计图纸,而是把图纸按照美丽的图画来制作的。所以,一张设计图纸必须按照严格的比例来制作。

2、看清图纸的尺寸
有些设计图纸由于设计师没有在准备施工的现场作认真细致的测量,因此导致很多尺寸在设计时有遗漏,尤其是一些关键尺寸如果在设计时没有掌握,有可能在施工时产生设计与施工脱节的情况。

大多数朋友常常关注于装潢公司的报价单,担心上当受骗,一项项地仔细检查,其实在设计图纸上也应该标注出来主要材料的名称以及材料的品牌,这对于今后施工人员依照图纸施工很有利。

在施工图纸中标注必要的制作工艺是为了一方面是便于施工,同时也能起到约束施工人员在施工过程中偷工减料的作用,保证消费者得到一个与合同洽谈相符的工程项目。
